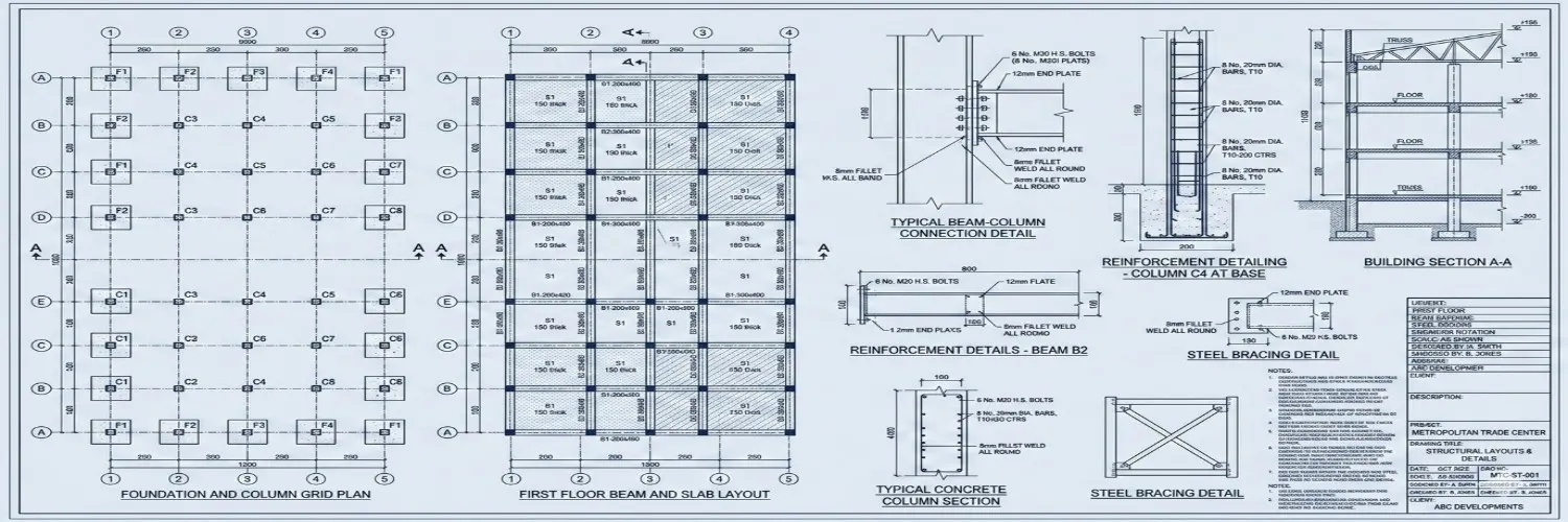
Structural engineering is a critical discipline in the architecture, engineering, and construction industry that ensures buildings and infrastructure are safe, stable, and capable of withstanding various loads and environmental conditions. At AEODC, we provide professional structural engineering expertise combined with advanced structural design methodologies to support efficient and reliable construction projects.
As an experienced structural design consultant, AEODC delivers technically accurate structural solutions for residential, commercial, and industrial developments. Our structural engineering team focuses on safety, durability, and efficiency while ensuring that every structural design aligns with modern construction standards and project requirements.
Our services support architects, developers, contractors, and engineering firms that require dependable structural engineering and structural design solutions for successful project execution.





